Seaside
from 18 m² to 80 m²
Starting at €43,000
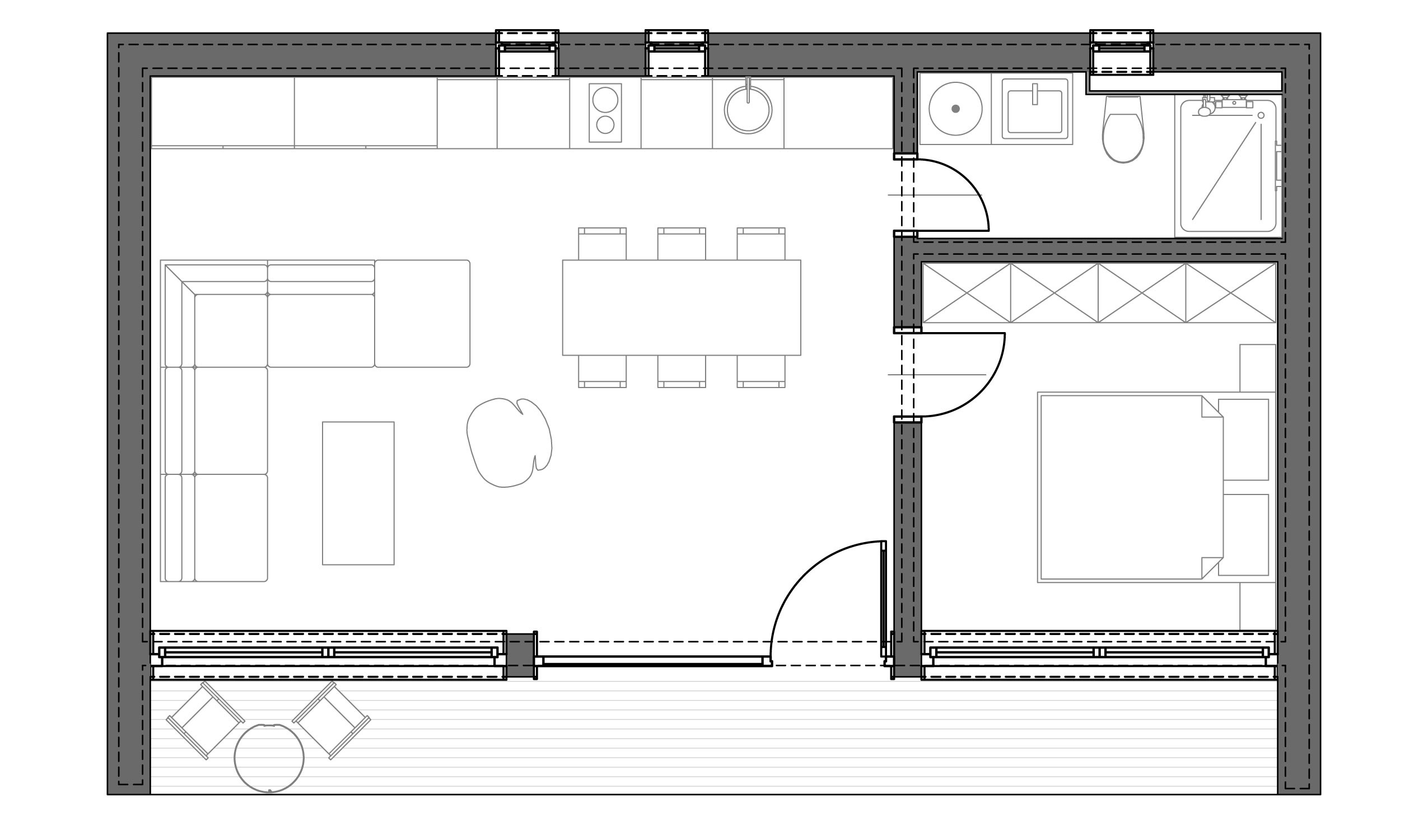
Seaside presents a linear, transparent floor plan with continuous glazing and direct outdoor access. The clear geometry supports flexible interior zoning, allowing smooth separation between living and private areas while maintaining openness and light.
Details
Highlights
Technology
meets design
Smart home control, air conditioning, underfloor heating, and solar power deliver efficient comfort — individually equipped.
Crafted to
your vision
Whether shell, turnkey, or fully furnished — every home is built exactly to your vision and finished with the same attention to detail.




