Countryside
from 18 m² to 80 m²
Starting at €43,000
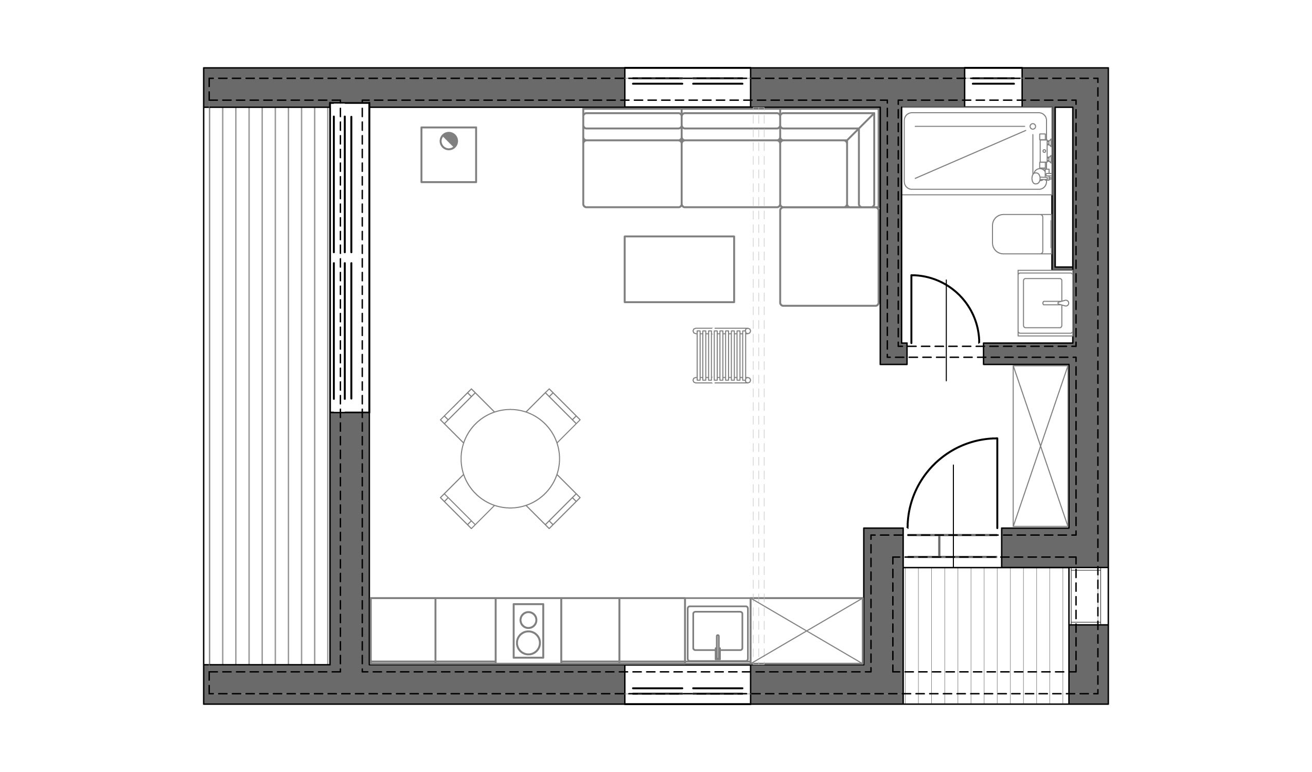
Countryside follows a clear and balanced layout with an open living area, separate bathroom, and the option for an integrated bedroom or workspace. The floor plan is defined by linear geometry, large glazing, and a seamless transition between interior and exterior.
Details
Highlights
Technology
meets design
Smart home control, air conditioning, underfloor heating, and solar power deliver efficient comfort — individually equipped.
Crafted to
your vision
Whether shell, turnkey, or fully furnished — every home is built exactly to your vision and finished with the same attention to detail.




